外围接单app,200块三小时服务,怎么找喝茶联系方式,同城空降快餐联系

三民重科-主营混凝土泵车,小型混凝土泵车,搅拌泵车、搅拌天泵技术领先!搅拌泵行业开拓者

悬崖的工地施工注意事项

悬崖施工是非常危险的工作,但是在云贵地区,或者其他的偏远山区。不可避免的要在绝壁上工作,用三民重科搅拌泵做悬崖的工地时,我们应该注意到哪些问题呢?

今天,三民重科给大家分享一些悬崖峭壁的施工技术。

在施工前对施工人员进行安全教育和施工技术交底,确保施工过程中人员的安全,还能提高工程进度、保证工程质量。大家安全轻松的把钱赚回家,是施工老板和员工共同的心愿。

在施工的过程中,等三民重科搅拌泵入场的时候,其实前期的清理工作已经很到位了,但是小编为了您施工的安全性,再次提醒您,清理现场松动的石块和泥土,以及前期施工会影响到浇筑的杂物。

三民重科搅拌泵相对于传统的人工运输安全性已经大大的提高。只有在布管阶段需要架设钢管脚手架。

工人在立管架,旁边就是悬崖峭壁。

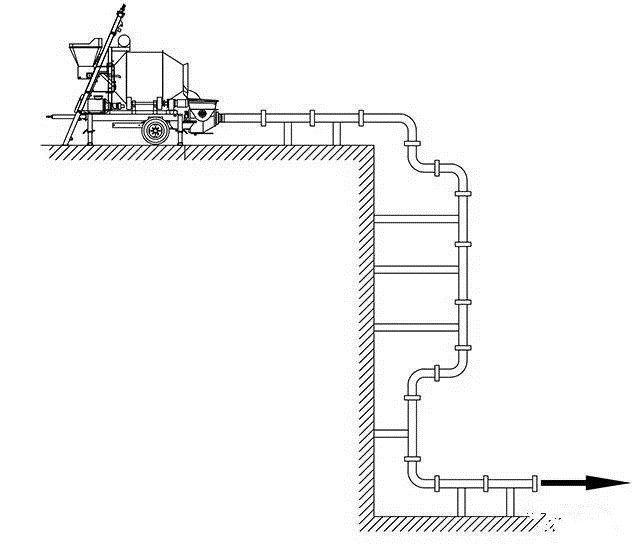
此处有个小技巧,如图所示:

布置脚手架的时候,可以事先想好管道的走向,根据管道布置脚手架。小编给大家整理了布管技巧以供参考:

悬崖参考直管布管图:

在实际施工中,很多老板会根据地形选择Z字型布管,跟上图中的布管原理一样,以防巨大的冲击力。

布置好管道后,就是搅拌泵正式工作的时候了,注意好沙石水泥的比例,一层楼面的泵送工作就可以有条不紊的进行了。这个过程和大多数工地一样,听从楼面指挥开始浇筑。

? 2019    混凝土泵车_小型混凝土泵车_搅拌泵车_泵车价格-三民重科    版权所有    湘ICP备16020735号-1    技术支持:蒲公英长沙网站建设

友情链接:

0.4688s